Maison Gaut

Façade Est
Restauration des façades de la maison Gaut
façade développée
détail corniche
chantier
chantier
chantier
Vue depuis le square de Montsouris
Façades
Archive@CAAP
Restauration des façades de la maison Gaut des frères Perret, datant de 1923
Paris XIVe
Archive © CAAC

Rossini

façade
facade
dessin cache
bache
avant restauration
élévation
détails
5
6
7
Réhabilitation de la façade de la Salle Rossini de la Mairie du IXe avec un enduit biosourcé
Paris IXe
Nominé Geste d'argent restauration au Geste d'or

Chapeau Rouge

façade nord
zoom
Vue intérieure
Vue intérieure
texture
Zoom prise
Zoom plan de travail
zoom
arrière
chantier
chantier
chantier
chantier
chantier
chantier
pavé de verre
axonométrie
restauration du pavillon belvédère
restauration du pavillon aire de jeux
Restauration de deux pavillons de jardin années 30 en béton de porphyre de Léon Azéma
Paris XIXe
Mention Patrimoine et métiers au Geste d'Or

Église Saint-Pierre Saint-Paul

Façade occidentale
Nef
Modèle 3D @ASAP
Façades occidentale et nord
Façades
Mesures d'urgence sur l'Église Saint-Pierre Saint-Paul - ISMH
Saint-Martin-de-Bréthencourt, Yvelines
Orthophotographie © ASAP

Église Saint-Martin

Façade occidentale
Nef
Orthophoto © ASAP
Etat Sanitaire
Carte postale
Diagnostic patrimonial et mesures d'urgence sur l'Église Saint-Martin
Brionne, Eure
Orthophotographie © ASAP, Archive © AD de l'Eure

Église Saint-Nicaise

carte postale
carte postale
ES
Façades Nord et Ouest
Datation
Plan projet niveau 00
ambiance
béton
Vue de drone des toitures
Diagnostic patrimonial pour la réhabilitation de l'église Saint-Nicaise en brasserie - Classée MH
Rouen, Seine-Maritime
Archives © Fonds Pierre Chirol © NASCA Architectes

Martyrs

vue depuis la rue des martyrs
Avant-Après
mesures d'urgence
DIAG restauratrices
Chantier
Chantier
Chantier
Avant
Après
hérisson
Restauration de deux peintures murales publicitaires réalisées en 1907 et 1909 - ISMH
Paris IXe
© Laura Serafini et Antonella Trovisi

Hôtel Bourlon de Rouvre

restauration des décors intérieurs de l'Hôtel Bourlon de Rouvre
restauration des peintures et dorures des décors intérieurs
Estampage des décors anciens
restauration des boiseries à la capucine
relevé des décors intérieurs
restauration des stucs marbre, des peintures et dorures des décors intérieurs
restauration des lustres
relevé des décors intérieurs
Restauration des décors intérieurs de l'Hôtel Bourlon de Rouvre
Paris VIIIe
© Arte Charpentier

Hôtel Delisle-Mansart

porte cochère
détail restauration de la porte cochère
porte entrée
détail restauration de la porte d'entrée
détail restauration des menuiseries
Chantier
Chantier
Chantier
Restauration des menuiseries extérieures et des couvertures de l'Hôtel Deslile-Mansart - ISMH
Marais, Paris IIIe

Hôtel Cahen d'Anvers

Façade principale
MEX existant
MEX détail d'intervention
MEX détail d'intervention
Décor intérieur état sanitaire
Décor intérieur état sanitaire
Laura Serafini
Gravure
Restauration des menuiseries extérieures et décors intérieurs d'un hôtel particulier du XIXème
Paris XVIe
Avec Fresh architecture © Laura Serafini © Archives nationales

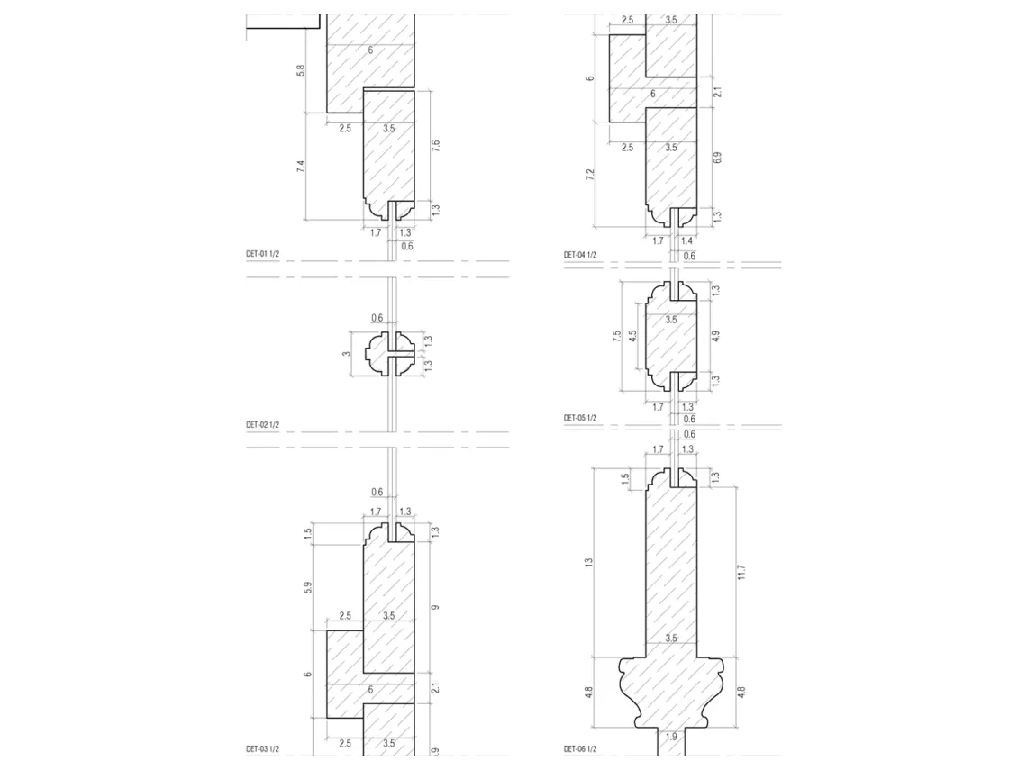
Menuiseries Mallet-Stevens

1
2
3
4
5
6
Restauration des menuiseries d'un immeuble de Mallet-Stevens datant de 1929 - Classé MH
Paris XIVe
Archives © MAP

Cité Fleurie

depuis le jardin
vue d'oiseau
coupe axonométrique
coupe
détail verrière
détail porte
typologies menuiseries
archive
Restauration de 19 ateliers d’artiste de la Cité Fleurie - ISMH
Paris XIIIe
Archives © CVP

Boutigny-Prouais 10 logements

vue aérienne
Vue axonométrique
Plan des rez-de-chaussée
plan
vue
béton
chantier
chantier
chantier
chantier
Restauration d'une ancienne ferme et construction de 10 logements
Boutigny-Prouais, Eure et Loir
© Atelier Slash

Pension de famille Brunoy 14 logements

Axonométrie, Pension de famille, 14 logements
Axonométrie
Plan des rez-de-chaussée
facades
coupes
plan
plan
coupe
chantier
chantier
chantier
chantier
Restauration d'une propriété du XIXe siècle avec isolation et construction en béton de chanvre
Brunoy, Essonne

Propriété Ruelle

couverture
couverture
couverture
chantier
chantier
chantier
chantier
chantier
couverture
couverture
couverture
couverture
couverture
Façade principale
Propriété Ruelle
Restauration des couvertures de la propriété Ruelle
Brunoy, Essonne
© Cupa Pizarras

Rue des Bois

fac
Axonométrie de principe
chantier
chantier
Textures
Façades Sud RDC et R+1
Restitution d'une façade parisienne
Paris XIXe

Nansouty

vue extérieure
Surrélévation
chantier
chantier
vue intérieure
vue intérieure
vue intérieure
Surélévation en bloc de béton de chanvre et restauration des façades d'un atelier d'artiste
Paris XIVe

Maison doublée

0
1
2
3
4
5
6
7
8
9
10
Surélévation en béton de chanvre et ossature bois pour 2 logements
Boulogne-Billancourt
Nominée Primus au Geste d'Or

Ermitage

verrières
verrière
intérieur
intérieur
hublot
plan
Restauration d'un atelier d’artiste
Paris XXe

Gare de l'Est

0
1
2
3
4
5
6
7
Diagnostic patrimonial des menuiseries extérieures, coupoles et halls de la Gare de l'Est - ISMH
Paris Xe
© Gares & Connexions

Albatros

verrière
dessin
dessin
dessin
ambiance
ambiance
Restauration d’une halle industrielle en centre culturel - ISMH
Montreuil
© Fresh architecture